with TU Delft (Chair of Interiors Buildings Cities)
for Future Architecture
In the course of the digitalization and thus immediate availability of information related to domestic creation over the past decades, self-made production has found its place in an overly private domain in which ideas, instructions and goods have become the subject of an immaterial sharing culture. DIY in the very sense of its name has turned from a social–or at least familistic–effort into a desire of individual manifestation within the creative community.
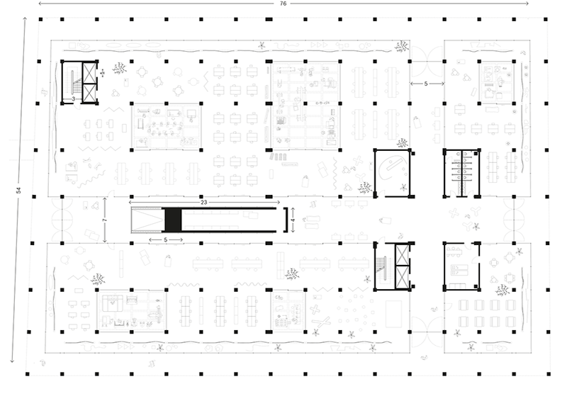
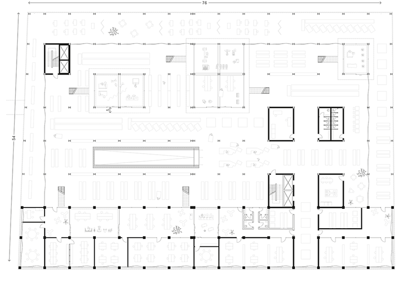
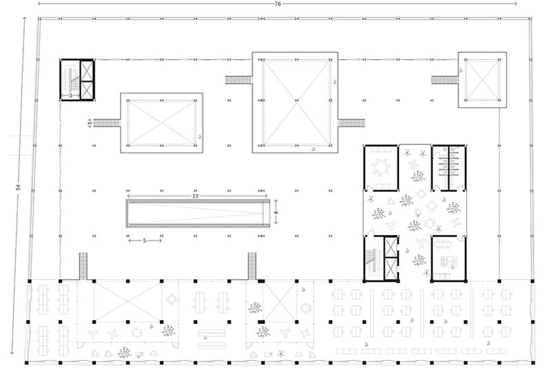
The design project took this development as the starting point for an architectural intervention that dealt with the physical character of amateur making as part of the wider building industry, adapting to the social reality in the selected neighborhood in order for a symbiotic effect on all involved sides: to foster an economic (and ecological) responsibility towards material cultures, to generate a communal platform for constructive exchange and to reactivate a programmatically incoherent building site. It was the ambition to confront the technical expertise of the stakeholders with the curious naïvety of the users which constituted the framework for the definition of the venture: socially, materially, spatially, politically. The strategy consisted of a number of steps to make space for a new direction within the existing structure, aiming to integrate local and related parties to equally benefit from the realisation of what the project seeked to be: a model for a small scale appropriation of a spatial vacancy in a highly potent urban condition. Through the proposal of restructuring the hardly active site, surrounded by an increasingly adaptive nature through initiatives from multiple disciplines around the city over the recent years, the local residents were offered to be given an actual place to go for undertakings concerning the housing on any scale.
The collaboration between professionals (supply), amateurs (demand) and administrators (curation) functioned as the cultural manifesto for the suggested transformation where the passion for self-fulfilment, the aspiration to make something (for) yourself and the ambition for physical customization were founded in the conviction to foster a collective engagement towards the most direct relationships among its agents in the chosen location, learning by doing.
with TU Delft (Chair of Interiors Buildings Cities)
for Future Architecture
07/17
Rotterdam, Netherlands