with Something Fantastic
for De Arc (Flemish Bouwmeester)
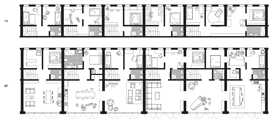
On behalf of the housing cooperative De Arc and a group of thirty future inhabitants, it was to design a communal apartment building in Turnhout, Belgium, on the basis of a speculative proposal conceived in 2013 for the Flemish Bouwmeester. The row house typology was grouped around a very generous, covered collective greenhouse space in which large, adjacent living rooms and kitchens could be shared in smaller groups or be used individually, according to the each dwellers’ family situation and temporary needs. Towards the outer edge of the building, private bathrooms, bedrooms and studios were arranged to offer a maximum of privacy to each resident.
By minimising the space used per capita and thereby solving a more and more pressing problem of the shrinkage of unbuilt environment in the rural areas of Flanders, the building offered a generous variety of spatial configurations for its inhabitants and their neighbours without cutting privacy and comfort. Being subjected to a major masterplan for the redevelopment of the outer suburban field, the chosen site was supposed to generate a transitional sequence of domains– communal, shared, private & common–through architectural means. This linear passage worked as the guiding theme for what was manifested as a housing block surrounding a collaborative greenhouse as both the behavioural and spatial centre of daily life. Since the desire for a collective effort within a private realm expressed the initial demand among the community, the eventual design aimed to offer a perpetual change of perspective within the ground by contrasting the rather strict living area with the rather informal setup of the courtyard, still allowing for a potential appropriation through the users in how the gardens, flower beds and facilities were to be activated.
The characteristic layout of the framing building accommodated three types of floor plans, each being adaptable to the numbers and requirements of residents within a unit. This generated a flexible and equally sustainable composition for the entire system by enabling the structural grid to maintain while customising the homes with the prospective occupants.
with Something Fantastic
for De Arc (Flemish Bouwmeester)
02/14
Turnhout, Belgium